| 物品名称 | 图片 | 采购量 | 厂牌型号/规格属性 |
|---|---|---|---|
| 刮胶辊 |
|
100支 | 长期合作,需求量稳定 |
| 刮胶辊 |
|
100支 | 长期合作,需求量稳定 |
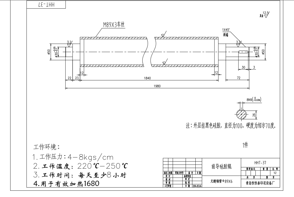
| 附件 | HHT-49后导毡胶辊芯(1680).pdf HHT-37前导毡胶辊芯(1680).pdf |
|---|---|
| 交货地 | 山东省 青岛市 |
| 补充说明 | 需方信息: 青岛恒恒泰印花设备有限公司 需求商品名称: 耐高温质量稳定的刮胶辊 起订量: 50-100支,且长期合作,需求量稳定 质量要求: 外层挂黑色硅胶,直径为100MM,其他尺寸根据图纸具体要求确定, 另外轴的长短不同轴头加工不同,胶层必须是耐高温硅胶, 是进口硅胶,国产的能保证质量稳定也可以。 硬度: 绍尔70度 工作环境温度: 220-250度 工作时间: 每天至少8小时 工作压力: 4-8kgf/C㎡ 运费: 供方支付 要求: 待定 结款方式: 现款,货到付款 保修期要求: 保修一年, 期间如果出现质量问题,第一次 告, 第二次索赔 ,第三次终止合作。 工期要求: 收到订单日起8天以内,大批量可分期,至少保证平均20根/8天 |
| 对供应商要求 | 要求供应商对询价物品全部报价 证照要求: |
报价后可见联系信息