深圳市华威环保建材有限公司

围挡

本次采购已结束,已获得8条报价
截止日期:2020-07-19 已有8人报价

询价物品

物品名称 图片 采购量 厂牌型号/规格属性
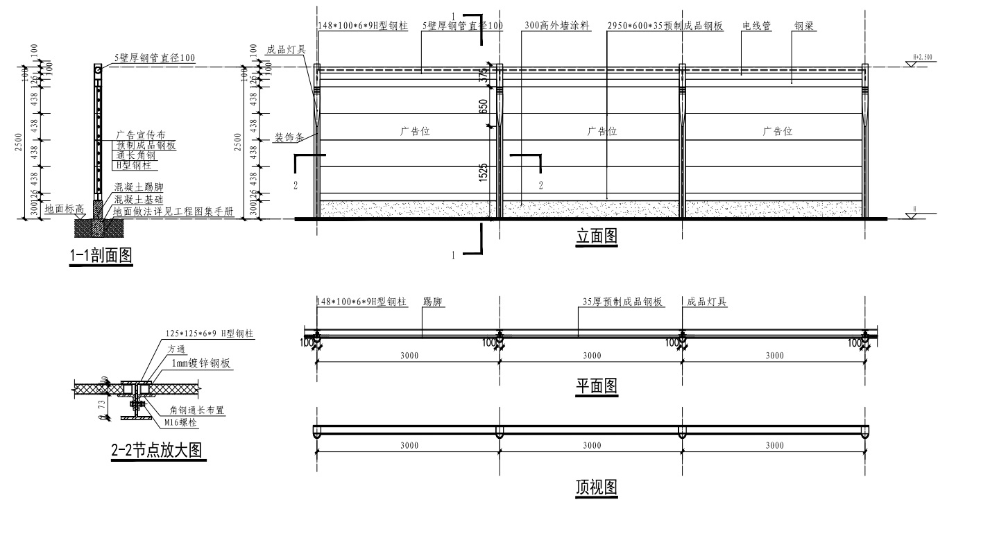
围挡
600 标准c类围挡

采购要求

附件 围挡样式.jpg
交货地 广东省 惠州市
补充说明 需要能接受招投标
对供应商要求

所在地区: 广东省

经营模式: 生产制造  贸易批发  商业服务 

证照要求:
三/五证合一营业执照